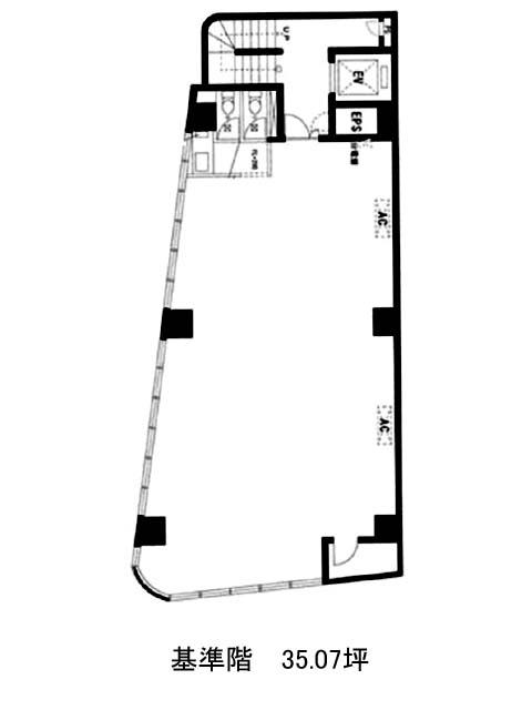
ウィンド北新宿ビルのテナント募集中区画
| 階数 | 面積 | 賃料(共益費含む) | 保証金 | 入居可能日 | 検討リスト | 詳細 |
|---|---|---|---|---|---|---|
| 3 | 35.07坪 | 578,655円/月(16,500円/坪) | 315万円 | 2026年3月上旬 |
…新着物件
アクセス
ウィンド北新宿ビルの物件情報
ウィンド北新宿ビル(新宿区北新宿)は大久保駅(南口)から徒歩4分の賃貸オフィスです。ウィンド北新宿ビルは大久保駅(南口)の他に西武新宿駅(北口)徒歩6分、新宿西口駅(D5番出口)徒歩8分で利用も可能です。

