PMO秋葉原 4階
物件概要
物件番号
383-00302-30物件名
PMO秋葉原所在地
- 東京都千代田区岩本町3-11-6
- アクセスマップ
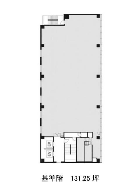
面積
131.25坪賃料(共益費含)
:応相談応相談
入居日
2026年1月上旬保証金
応相談礼金
なし更新料
なし償却費
なし竣工
2010年1月構造
S造規模
地上8階トイレ
男女別空調
個別空調エレベーター
有セキュリティ
有駐車場
有耐震
新耐震基準基準階天井高
2800mm空室延床面積
525.00坪情報更新日
2025/11/07PMO秋葉原のテナント募集中区画
| 階数 | 面積 | 賃料(共益費含む) | 保証金 | 入居可能日 | 検討リスト | 詳細 |
|---|---|---|---|---|---|---|
| 2 | 131.25坪 | 応相談(応相談) | 応相談 | 2026年1月上旬 | ||
| 4 | 131.25坪 | 応相談(応相談) | 応相談 | 2026年1月上旬 | ||
| 5 | 131.25坪 | 応相談(応相談) | 応相談 | 2026年1月上旬 | ||
| 6 | 131.25坪 | 応相談(応相談) | 応相談 | 2026年1月上旬 |
…新着物件
アクセス
PMO秋葉原の物件情報
PMO秋葉原(千代田区岩本町)は岩本町駅(A4番出口)から徒歩3分の賃貸オフィスです。全面ガラス張りのファサードが目を引く本物件は、広い間口と直線的なデザインにより、街並みに映える堂々たる佇まい。視認性も高く、企業のブランディングにも好影響を与える外観です。
エントランスは天井高を活かした開放的な空間で、自然光が差し込むロビーとともに、来訪者をすっきりと迎える印象。上質感と明るさが両立しています。
基準階は約131坪の整形フロアで、2面採光×天井高2,800mmという高スペック。開放感のある空間づくりができ、部署間のゾーニングや会議室配置も柔軟に対応可能です。
設備面では、エレベーター2基・男女別トイレ・機械警備・駐車場と、現代のビジネスニーズに応える環境が整備されており、機能・快適性ともにハイレベル。最寄り駅からのアクセスも良く、利便性も申し分ありません。PMO秋葉原は岩本町駅(A4番出口)の他に秋葉原駅(4番出口)徒歩4分、馬喰町駅(4番出口)徒歩9分で利用も可能です。

