8階は現在募集がありません
4フロア募集区画あり

PMO秋葉原 8階

前の写真 次の写真

物件概要

物件番号

383-00302-70

物件名

PMO秋葉原

所在地

面積

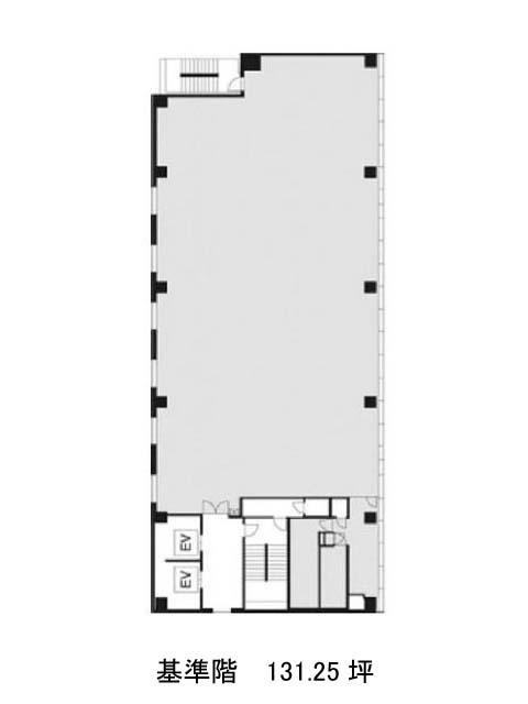
131.25坪

賃料(共益費含)


入居日

募集終了

保証金

礼金

更新料

償却費

竣工

2010年1月

構造

S造

規模

地上8階

トイレ

男女別

空調

個別空調

エレベーター

セキュリティ

駐車場

耐震

新耐震基準

基準階天井高

2800mm

空室延床面積

525.00坪

最寄駅

情報更新日

2025/11/07

PMO秋葉原のテナント募集中区画

階数 面積 賃料(共益費含む) 保証金 入居可能日 検討リスト 詳細
2 131.25坪 応相談(応相談) 応相談 2026年1月上旬
4 131.25坪 応相談(応相談) 応相談 2026年1月上旬
5 131.25坪 応相談(応相談) 応相談 2026年1月上旬
6 131.25坪 応相談(応相談) 応相談 2026年1月上旬
…新着物件

アクセス

PMO秋葉原の物件情報

PMO秋葉原(千代田区岩本町)は岩本町駅(A4番出口)から徒歩3分の賃貸オフィスです。
全面ガラス張りのファサードが目を引く本物件は、広い間口と直線的なデザインにより、街並みに映える堂々たる佇まい。視認性も高く、企業のブランディングにも好影響を与える外観です。
エントランスは天井高を活かした開放的な空間で、自然光が差し込むロビーとともに、来訪者をすっきりと迎える印象。上質感と明るさが両立しています。
基準階は約131坪の整形フロアで、2面採光×天井高2,800mmという高スペック。開放感のある空間づくりができ、部署間のゾーニングや会議室配置も柔軟に対応可能です。
設備面では、エレベーター2基・男女別トイレ・機械警備・駐車場と、現代のビジネスニーズに応える環境が整備されており、機能・快適性ともにハイレベル。最寄り駅からのアクセスも良く、利便性も申し分ありません。
PMO秋葉原は岩本町駅(A4番出口)の他に秋葉原駅(4番出口)徒歩4分、馬喰町駅(4番出口)徒歩9分で利用も可能です。

近隣のエリア・駅から探す