吉野屋商店ビル 1-4
物件概要
物件番号
397-00177-1物件名
吉野屋商店ビル所在地
- 東京都千代田区神田佐久間町2-23
- アクセスマップ
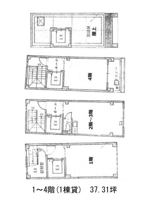
面積
37.31坪賃料(共益費含)
月額1,100,000円(29,483円/坪)
入居日
即保証金
10,000,199円礼金
1ケ月更新料
相談償却費
1ケ月竣工
1994年1月構造
S造規模
地上4階トイレ
男女共用空調
エレベーター
有セキュリティ
駐車場
無耐震
新耐震基準基準階天井高
空室延床面積
37.31坪情報更新日
2026/02/25吉野屋商店ビルのテナント募集中区画
| 階数 | 面積 | 賃料(共益費含む) | 保証金 | 入居可能日 | 検討リスト | 詳細 |
|---|---|---|---|---|---|---|
| 1-4 | 37.31坪 | 1,100,000円/月(29,483円/坪) | 1,000万円 | 即 |
…新着物件
吉野屋商店ビルのアクセス
吉野屋商店ビルの物件情報
吉野屋商店ビル(千代田区神田佐久間町)は秋葉原駅(1番出口)から徒歩2分の賃貸オフィスです。吉野屋商店ビルは秋葉原駅(1番出口)の他に岩本町駅(A4番出口)徒歩5分、浅草橋駅(西口)徒歩9分で利用も可能です。

