第2坂本ビルのテナント募集中区画
| 階数 | 面積 | 賃料(共益費含む) | 保証金 | 入居可能日 | 検討リスト | 詳細 |
|---|---|---|---|---|---|---|
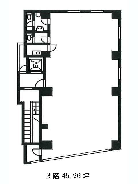
| 3 | 45.96坪 | 657,228円/月(14,300円/坪) | 477万円 | 即 |
…新着物件
第2坂本ビルのアクセス
第2坂本ビルの物件情報
第2坂本ビル(千代田区東神田)は浅草橋駅(西口)から徒歩6分の賃貸オフィスです。外観はライトグレーの細かなタイルでシンプルかつ堅実な印象。落ち着いた佇まいが安心感を与えます。
基準階は約46坪とコンパクトながら、長方形に近い整形フロアで、柱もすべて外周に配置されているため、空間をすっきり活用できます。貸室内には男女別トイレと給湯室があり、専有性を重視したい企業にも好まれやすい構成。さらに、各フロアにはエレベーターホールがしっかりと設けられており、1フロア1テナントの利用形態と相まって、来訪者動線やセキュリティ面にも配慮されています。
周辺は落ち着いた街並みで、業務に集中しやすい環境も魅力のひとつ。シンプルで機能的、それでいてちょうど良い距離感のある空間をお探しの方に、フィットしやすい物件といえるでしょう。第2坂本ビルは浅草橋駅(西口)の他に馬喰町駅(4番出口)徒歩6分、岩本町駅(A4番出口)徒歩7分で利用も可能です。

