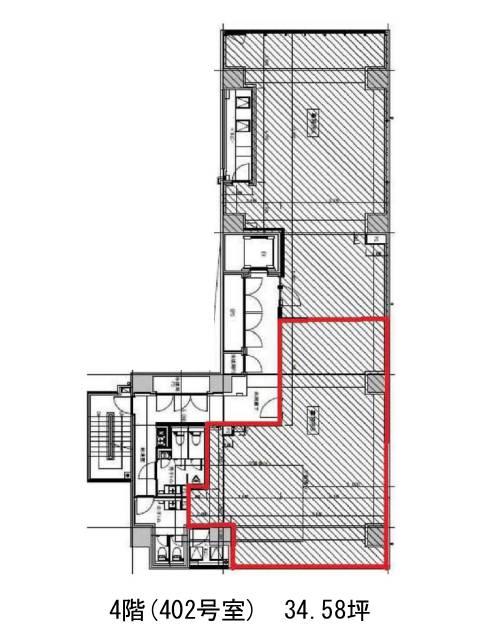
第2厚生館ビル 4階 402
物件概要
物件番号
634-01374-4物件名
第2厚生館ビル所在地
- 東京都中央区銀座3-14-15
- アクセスマップ
面積
34.58坪賃料(共益費含)
月額1,065,064円(30,800円/坪)
入居日
即保証金
7,745,920円礼金
なし更新料
新1ケ月償却費
2ケ月竣工
2025年12月構造
RC規模
地上9階トイレ
男女別空調
個別空調エレベーター
有セキュリティ
有駐車場
有耐震
新耐震基準基準階天井高
2700mm空室延床面積
176.88坪情報更新日
2026/02/17第2厚生館ビルのテナント募集中区画
| 階数 | 面積 | 賃料(共益費含む) | 保証金 | 入居可能日 | 検討リスト | 詳細 |
|---|---|---|---|---|---|---|
| 4 | 34.58坪 | 1,065,064円/月(30,800円/坪) | 774万円 | 即 | ||
| 9 | 36.57坪 | 1,126,356円/月(30,800円/坪) | 819万円 | 即 | ||
| 9 | 71.15坪 | 2,191,420円/月(30,800円/坪) | 1,593万円 | 即 | ||
| 9 | 34.58坪 | 1,065,064円/月(30,800円/坪) | 応相談 | 即 |
…新着物件
第2厚生館ビルのアクセス
第2厚生館ビルの物件情報
第2厚生館ビル(中央区銀座)は東銀座駅(A7番出口)から徒歩3分の賃貸オフィスです。第2厚生館ビルは東銀座駅(A7番出口)の他に新富町駅(1番出口)徒歩5分、銀座駅(A12番出口)徒歩6分で利用も可能です。

