第2厚生館ビル 8階 A新着
物件概要
物件番号
634-01374-5物件名
第2厚生館ビル所在地
- 東京都中央区銀座3-14-15
- アクセスマップ
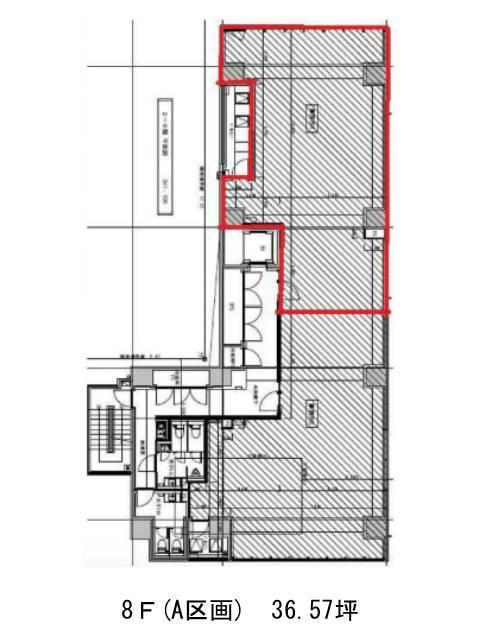
面積
36.57坪賃料(共益費含)
月額1,126,356円(30,800円/坪)
入居日
即保証金
8,191,680円礼金
なし更新料
新1ケ月償却費
2ケ月竣工
2025年12月構造
RC規模
地上9階トイレ
男女別空調
個別空調エレベーター
有セキュリティ
有駐車場
有耐震
新耐震基準基準階天井高
2700mm空室延床面積
284.60坪情報更新日
2026/04/01第2厚生館ビルのテナント募集中区画
…新着物件
第2厚生館ビルのアクセス
第2厚生館ビルの物件情報
第2厚生館ビル(中央区銀座)は東銀座駅(A7番出口)から徒歩3分の賃貸オフィスです。第2厚生館ビルは東銀座駅(A7番出口)の他に新富町駅(1番出口)徒歩5分、銀座駅(A12番出口)徒歩6分で利用も可能です。

