Daiwa日本橋馬喰町Ⅱのテナント募集中区画
| 階数 | 面積 | 賃料(共益費含む) | 保証金 | 入居可能日 | 検討リスト | 詳細 |
|---|---|---|---|---|---|---|
| 10 | 113.12坪 | 応相談(応相談) | 応相談 | 2026年8月上旬 | ||
| 11 | 113.12坪 | 応相談(応相談) | 応相談 | 2026年8月上旬 |
…新着物件
Daiwa日本橋馬喰町Ⅱのアクセス
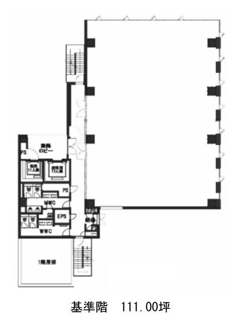
Daiwa日本橋馬喰町Ⅱの物件情報
Daiwa日本橋馬喰町Ⅱ(中央区日本橋馬喰町)は馬喰町駅(5番出口)から徒歩1分の賃貸オフィスです。2023年5月竣工の新築ビルです。地上11階建で、ガラスウォールを多様しシャープな外観をしています。江戸通り沿いの角地に建ち視認性が高いでしょう。駐車場・EV2基・個別空調・非常階段2箇所・貸室外の男女別トイレといった設備仕様です。貸室は柱が真ん中に無い長方形をしており、配置のしやすい間取りです。天井高2700㎜で開放感があるでしょう。近隣は、衣料品や装飾品の問屋街に近く、買い物客で賑わいがあるエリアです。Daiwa日本橋馬喰町Ⅱは馬喰町駅(5番出口)の他に浅草橋駅(A2番出口)徒歩5分、東日本橋駅(B3番出口)徒歩5分で利用も可能です。

