4階は現在募集がありません
S-GATE FIT日本橋馬喰町 4階
物件概要
S-GATE FIT日本橋馬喰町のテナント募集中区画
現在、空室がございません。
アクセス
S-GATE FIT日本橋馬喰町の物件情報
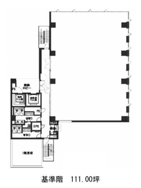
S-GATE FIT日本橋馬喰町(中央区日本橋馬喰町)は馬喰町駅(5番出口)から徒歩1分の賃貸オフィスです。2023年5月竣工の新築ビルです。地上11階建で、ガラスウォールを多様しシャープな外観をしています。江戸通り沿いの角地に建ち視認性が高いでしょう。駐車場・EV2基・個別空調・非常階段2箇所・貸室外の男女別トイレといった設備仕様です。貸室は柱が真ん中に無い長方形をしており、配置のしやすい間取りです。天井高2700㎜で開放感があるでしょう。近隣は、衣料品や装飾品の問屋街に近く、買い物客で賑わいがあるエリアです。S-GATE FIT日本橋馬喰町は馬喰町駅(5番出口)の他に浅草橋駅(A2番出口)徒歩5分、東日本橋駅(B3番出口)徒歩5分で利用も可能です。

