3階は現在募集がありません
トーシンビルミレニアム 3階
物件概要
トーシンビルミレニアムのテナント募集中区画
現在、空室がございません。
アクセス
トーシンビルミレニアムの物件情報
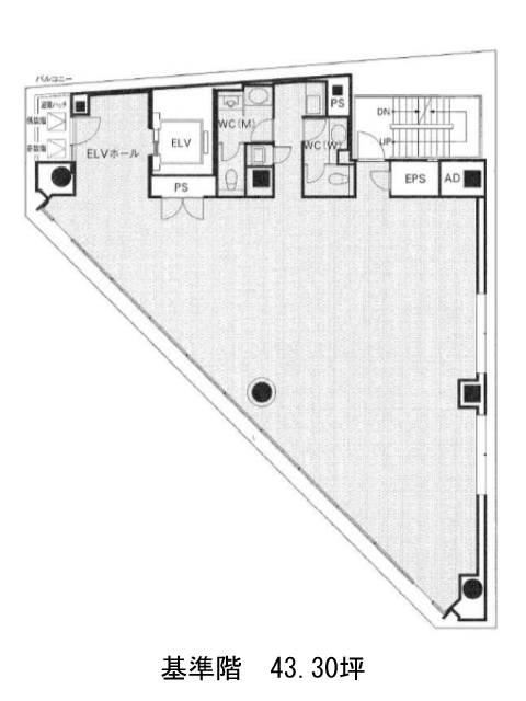
トーシンビルミレニアム(渋谷区代々木)は初台駅(東口)から徒歩3分の賃貸オフィスです。2000年竣工、初台交差点に面する地上8階建てです。基準階面積約43坪の室内は無柱の三角形で、2700mmのゆとりある天井高と開けた眺望で圧迫感を感じにくいでしょう。共用部は1つの面にまとまって設置されています。当物件にはエレベーター1基、個別空調、光ケーブル引込み済み、男女別トイレ、併設駐車場など、お仕事をサポートする設備が充実しています。また、セキュリティにはカード式の機械警備を採用しています。建物の並びにコンビニが有り、通り向かいのオペラシティには郵便局や飲食店などの店舗が多数営業していますので、事務作業や休憩時等に活用出来ます。トーシンビルミレニアムは初台駅(東口)の他に参宮橋駅(出口2)徒歩9分、新宿駅(8番出口)徒歩12分で利用も可能です。

