トーシンビルミレニアム 6階新着
物件概要
物件番号
177-00185-50物件名
トーシンビルミレニアム所在地
- 東京都渋谷区代々木4-32-1
- アクセスマップ
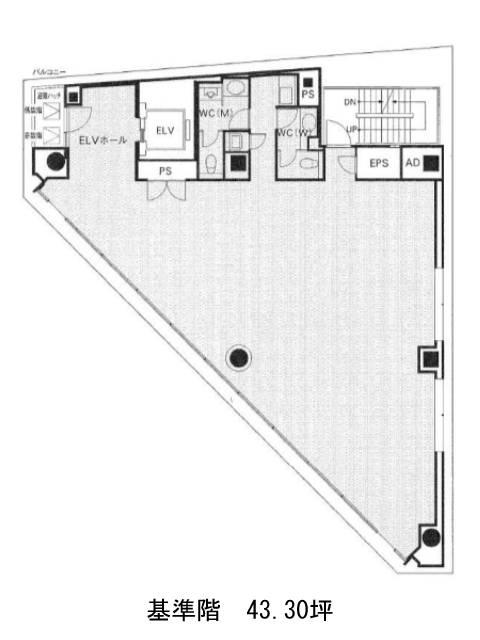
面積
43.30坪賃料(共益費含)
月額762,080円(17,600円/坪)
入居日
相談保証金
4,156,800円礼金
なし更新料
あり償却費
なし竣工
2000年12月構造
SRC規模
地上8階トイレ
男女別空調
個別空調エレベーター
有セキュリティ
有駐車場
有耐震
新耐震基準基準階天井高
2700mm空室延床面積
43.30坪情報更新日
2026/03/16トーシンビルミレニアムのテナント募集中区画
| 階数 | 面積 | 賃料(共益費含む) | 保証金 | 入居可能日 | 検討リスト | 詳細 |
|---|---|---|---|---|---|---|
| 6 | 43.30坪 | 762,080円/月(17,600円/坪) | 415万円 | 相談 |
…新着物件
トーシンビルミレニアムのアクセス
トーシンビルミレニアムの物件情報
トーシンビルミレニアム(渋谷区代々木)は初台駅(東口)から徒歩3分の賃貸オフィスです。2000年竣工、初台交差点に面する地上8階建てです。基準階面積約43坪の室内は無柱の三角形で、2700mmのゆとりある天井高と開けた眺望で圧迫感を感じにくいでしょう。共用部は1つの面にまとまって設置されています。当物件にはエレベーター1基、個別空調、光ケーブル引込み済み、男女別トイレ、併設駐車場など、お仕事をサポートする設備が充実しています。また、セキュリティにはカード式の機械警備を採用しています。建物の並びにコンビニが有り、通り向かいのオペラシティには郵便局や飲食店などの店舗が多数営業していますので、事務作業や休憩時等に活用出来ます。トーシンビルミレニアムは初台駅(東口)の他に参宮橋駅(出口2)徒歩9分、新宿駅(8番出口)徒歩12分で利用も可能です。

