8階は現在募集がありません
2フロア募集区画あり

西新宿松屋ビル 8階

前の写真 次の写真

物件概要

物件番号

177-00060-100

物件名

西新宿松屋ビル

所在地

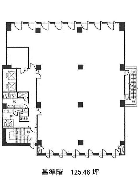
面積

125.46坪

賃料(共益費含)


入居日

募集終了

保証金

礼金

更新料

償却費

竣工

1987年3月

構造

SRC

規模

地上9階/地下1階

トイレ

男女別

空調

セントラル

エレベーター

セキュリティ

駐車場

耐震

新耐震基準

基準階天井高

2450mm

空室延床面積

145.16坪

最寄駅

情報更新日

2026/01/16

西新宿松屋ビルのテナント募集中区画

階数 面積 賃料(共益費含む) 保証金 入居可能日 検討リスト 詳細
1-2F 40.46坪 応相談(応相談) 応相談 2026年1月中旬
2 104.70坪 応相談(応相談) 応相談 2026年1月中旬
…新着物件

アクセス

西新宿松屋ビルの物件情報

西新宿松屋ビル(渋谷区代々木)は初台駅(東口)から徒歩4分の賃貸オフィスです。
西新宿松屋ビルは初台駅(東口)の他に参宮橋駅(出口2)徒歩10分、新宿駅(8番出口)徒歩11分で利用も可能です。

近隣のエリア・駅から探す