西新宿松屋ビルのテナント募集中区画
| 階数 | 面積 | 賃料(共益費含む) | 保証金 | 入居可能日 | 検討リスト | 詳細 |
|---|---|---|---|---|---|---|
| 1-2F | 40.46坪 | 応相談(応相談) | 応相談 | 2026年1月中旬 | ||
| 2 | 104.70坪 | 応相談(応相談) | 応相談 | 2026年1月中旬 |
…新着物件
アクセス
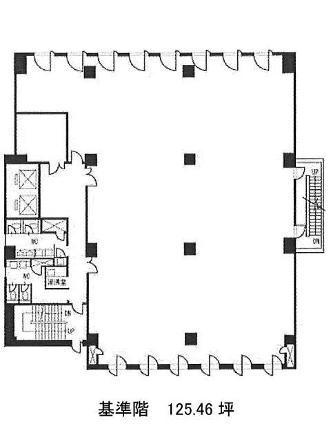
西新宿松屋ビルの物件情報
西新宿松屋ビル(渋谷区代々木)は初台駅(東口)から徒歩4分の賃貸オフィスです。西新宿松屋ビルは初台駅(東口)の他に参宮橋駅(出口2)徒歩10分、新宿駅(8番出口)徒歩11分で利用も可能です。

