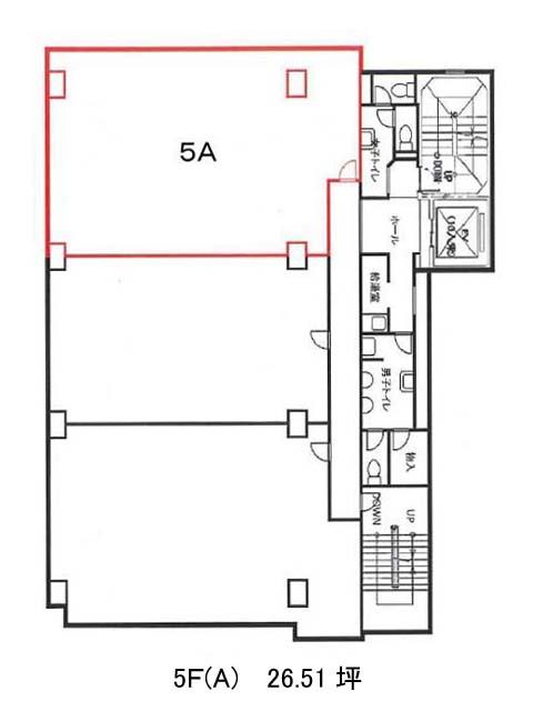
5階 5Aは現在募集がありません
セキサクビル 5階 5A
物件概要
セキサクビルのテナント募集中区画
現在、空室がございません。
アクセス
セキサクビルの物件情報
セキサクビル(新宿区大久保)は東新宿駅(出口2)から徒歩4分の賃貸オフィスです。明治通り沿いに立地し、デザイン性の高いファサードが目を引きます。2013年にリニューアル済み。
1フロア最大約93坪の広さを活かし、20坪台からの分割募集にも対応。貸室は整形でレイアウトしやすく、水回りはすべて室外共用部に集約されており、使い勝手も良好です。設備はOAフロア、個別空調、男女別トイレ、機械警備を備え、駐車場も完備。機能性とデザイン性のバランスが取れた、利便性の高い一棟です。セキサクビルは東新宿駅(出口2)の他に西早稲田駅(3番出口)徒歩6分、新大久保駅(出口)徒歩12分で利用も可能です。

