みなみビル 3階 A
物件概要
物件番号
268-00024-40物件名
みなみビル所在地
- 東京都新宿区百人町1-23-26
- アクセスマップ
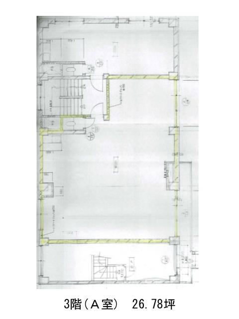
面積
26.78坪賃料(共益費含)
月額473,000円(17,662円/坪)
入居日
2026年3月中旬保証金
2,150,032円礼金
なし更新料
新1ケ月償却費
1ケ月竣工
1979年5月構造
RC規模
地上4階/地下1階トイレ
男女共用空調
エレベーター
無セキュリティ
有駐車場
無耐震
旧耐震基準基準階天井高
空室延床面積
26.78坪情報更新日
2026/02/17みなみビルのテナント募集中区画
| 階数 | 面積 | 賃料(共益費含む) | 保証金 | 入居可能日 | 検討リスト | 詳細 |
|---|---|---|---|---|---|---|
| 3 | 26.78坪 | 473,000円/月(17,662円/坪) | 215万円 | 2026年3月中旬 |
…新着物件
みなみビルのアクセス
みなみビルの物件情報
みなみビル(新宿区百人町)は大久保駅(南口)から徒歩2分の賃貸オフィスです。みなみビルは大久保駅(南口)の他に新大久保駅(出口)徒歩6分、西武新宿駅(北口)徒歩7分で利用も可能です。

