2階は現在募集がありません
Uビル 2階
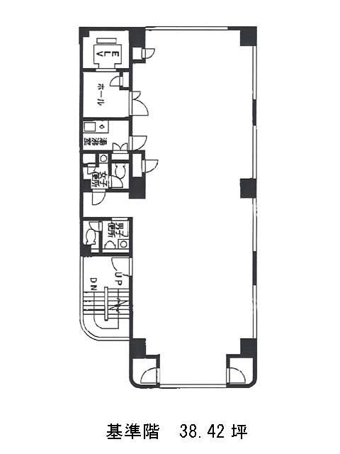
物件概要
Uビルのテナント募集中区画
現在、空室がございません。
アクセス
Uビルの物件情報
Uビル(台東区元浅草)は田原町駅(1番出口)から徒歩6分の賃貸オフィスです。Uビルは田原町駅(1番出口)の他に蔵前駅(A5番出口)徒歩7分、新御徒町駅(A4番出口)徒歩8分で利用も可能です。

