5階は現在募集がありません
2フロア募集区画あり

日本橋BSビル 5階

前の写真 次の写真

物件概要

物件番号

658-00023-50

物件名

日本橋BSビル

所在地

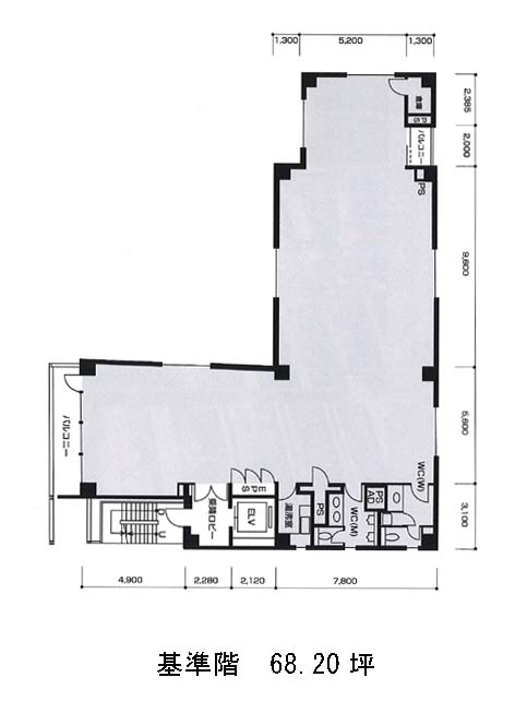
面積

68.20坪

賃料(共益費含)


入居日

募集終了

保証金

礼金

更新料

償却費

竣工

1994年3月

構造

S造

規模

地上8階/地下1階

トイレ

男女別

空調

個別空調

エレベーター

セキュリティ

駐車場

耐震

新耐震基準

基準階天井高

2550mm

空室延床面積

123.61坪

最寄駅

情報更新日

2026/03/18

日本橋BSビルのテナント募集中区画

階数 面積 賃料(共益費含む) 保証金 入居可能日 検討リスト 詳細
1 55.41坪 975,216円/月(17,600円/坪) 709万円 2026年4月下旬
2 68.20坪 1,200,320円/月(17,600円/坪) 872万円 2026年6月上旬
…新着物件

日本橋BSビルのアクセス

日本橋BSビルの物件情報

日本橋BSビル(中央区日本橋富沢町)は馬喰横山駅(A3番出口)から徒歩4分の賃貸オフィスです。
グレーを基調とした外観に明るい差し色のあるデザインで、視認性の高い建物です。基準階は約70坪あり、室内はL字型の形をしていますが、柱は壁に沿ってあるため、比較的レイアウトは組みやすいでしょう。ビル内はOAフロア、トイレは男女別となっております。駐車場もあるため、社用車を使う場合も便利です。セキュリティは機械警備を導入しており、耐震性も新耐震基準であるため、安心です。また周辺にはコンビニや飲食店、郵便局などが複数あるためとても利便性が高いです。
日本橋BSビルは馬喰横山駅(A3番出口)の他に東日本橋駅(B2番出口)徒歩5分、馬喰町駅(1番出口)徒歩6分で利用も可能です。

近隣のエリア・駅から探す