日本橋BSビルのテナント募集中区画
| 階数 | 面積 | 賃料(共益費含む) | 保証金 | 入居可能日 | 検討リスト | 詳細 |
|---|---|---|---|---|---|---|
| 1 | 55.41坪 | 975,216円/月(17,600円/坪) | 709万円 | 2026年4月下旬 | ||
| 2 | 68.20坪 | 1,200,320円/月(17,600円/坪) | 872万円 | 2026年6月上旬 |
…新着物件
日本橋BSビルのアクセス
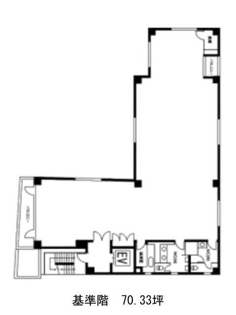
日本橋BSビルの物件情報
日本橋BSビル(中央区日本橋富沢町)は馬喰横山駅(A3番出口)から徒歩4分の賃貸オフィスです。グレーを基調とした外観に明るい差し色のあるデザインで、視認性の高い建物です。基準階は約70坪あり、室内はL字型の形をしていますが、柱は壁に沿ってあるため、比較的レイアウトは組みやすいでしょう。ビル内はOAフロア、トイレは男女別となっております。駐車場もあるため、社用車を使う場合も便利です。セキュリティは機械警備を導入しており、耐震性も新耐震基準であるため、安心です。また周辺にはコンビニや飲食店、郵便局などが複数あるためとても利便性が高いです。日本橋BSビルは馬喰横山駅(A3番出口)の他に東日本橋駅(B2番出口)徒歩5分、馬喰町駅(1番出口)徒歩6分で利用も可能です。

