PMO目黒 8階
物件概要
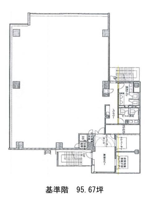
PMO目黒のテナント募集中区画
| 階数 | 面積 | 賃料(共益費含む) | 保証金 | 入居可能日 | 検討リスト | 詳細 |
|---|---|---|---|---|---|---|
| 8 | 95.67坪 | 応相談(応相談) | 応相談 | 即 |
…新着物件
PMO目黒のアクセス
PMO目黒の物件情報
PMO目黒(品川区上大崎)は目黒駅(東口)から徒歩1分の賃貸オフィスです。PMO目黒は目黒駅(東口)の他に白金台駅(1番出口)徒歩13分で利用も可能です。

