3階 3Aは現在募集がありません
2フロア募集区画あり

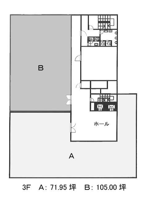
タカセビル本館 3階 3A

前の写真 次の写真

物件概要

物件番号

805-00185-40

物件名

タカセビル本館

所在地

面積

71.95坪

賃料(共益費含)


入居日

募集終了

保証金

礼金

更新料

償却費

竣工

1977年4月

構造

SRC

規模

地上9階/地下1階

トイレ

男女別

空調

セントラル

エレベーター

セキュリティ

駐車場

耐震

旧耐震基準

基準階天井高

2400mm

空室延床面積

453.11坪

最寄駅

情報更新日

2026/01/06

タカセビル本館のテナント募集中区画

階数 面積 賃料(共益費含む) 保証金 入居可能日 検討リスト 詳細
1-2F 348.51坪 応相談(応相談) 応相談 2026年4月上旬
3 104.60坪 2,094,092円/月(20,020円/坪) 1,673万円
…新着物件

アクセス

タカセビル本館の物件情報

タカセビル本館(豊島区東池袋)は東池袋駅(1番出口)から徒歩5分の賃貸オフィスです。
1977年竣工の地上9階、地下1階建て鉄骨鉄筋コンクリート造のビルです。外観は、重厚感のある落ちついた色合いでグリーン大通り沿いに立地し、周辺には飲食店やコンビニが複数あるため利便性がとても高いです。1階にも飲食店があるため、ランチにも活用できるでしょう。設備はエレベーターが2基、セントラル空調、トイレは男女別です。貸室内は長方形の整形オフィスのため、レイアウトの自由度が高いでしょう。
タカセビル本館は東池袋駅(1番出口)の他に池袋駅(39番出口)徒歩5分、東池袋四丁目駅(停留所)徒歩8分で利用も可能です。

近隣のエリア・駅から探す