メトロシティ飯田橋 5階
物件概要
物件番号
427-00148-20物件名
メトロシティ飯田橋所在地
- 東京都千代田区飯田橋4-5-16
- アクセスマップ
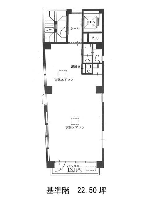
面積
22.50坪賃料(共益費含)
:応相談応相談
入居日
2026年5月上旬保証金
応相談礼金
なし更新料
新1ケ月償却費
なし竣工
1989年7月構造
SRC規模
地上10階/地下1階トイレ
男女共用空調
個別空調エレベーター
有セキュリティ
有駐車場
無耐震
新耐震基準基準階天井高
2450mm空室延床面積
45.00坪情報更新日
2026/03/05メトロシティ飯田橋のテナント募集中区画
| 階数 | 面積 | 賃料(共益費含む) | 保証金 | 入居可能日 | 検討リスト | 詳細 |
|---|---|---|---|---|---|---|
| 5 | 22.50坪 | 応相談(応相談) | 応相談 | 2026年5月上旬 | ||
| 7 | 22.50坪 | 応相談(応相談) | 応相談 | 即 |
…新着物件
メトロシティ飯田橋のアクセス
メトロシティ飯田橋の物件情報
メトロシティ飯田橋(千代田区飯田橋)は飯田橋駅(A5番出口)から徒歩2分の賃貸オフィスです。メトロシティ飯田橋は飯田橋駅(A5番出口)の他に九段下駅(7番出口)徒歩8分、水道橋駅(西口)徒歩9分で利用も可能です。

