8階は現在募集がありません
FF日本橋茅場町 8階
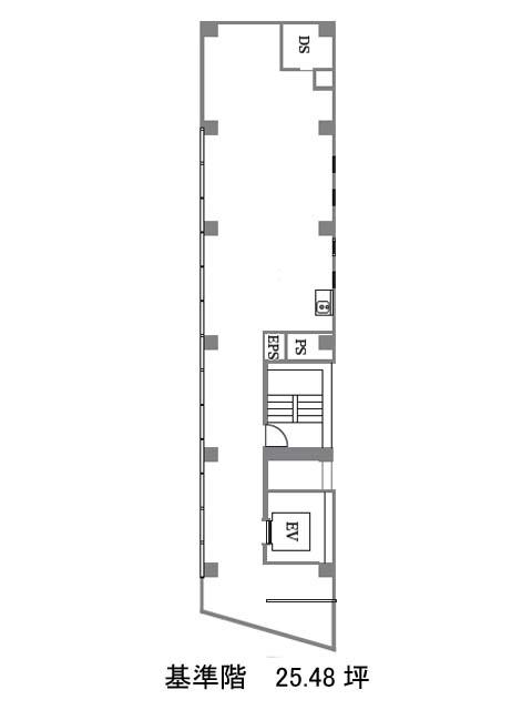
物件概要
FF日本橋茅場町のテナント募集中区画
現在、空室がございません。
FF日本橋茅場町のアクセス
FF日本橋茅場町の物件情報
FF日本橋茅場町(中央区日本橋茅場町)は茅場町駅(出口)から徒歩2分の賃貸オフィスです。FF日本橋茅場町は茅場町駅(出口)の他に八丁堀駅(A4番出口)徒歩7分、日本橋駅(D1番出口)徒歩8分で利用も可能です。

